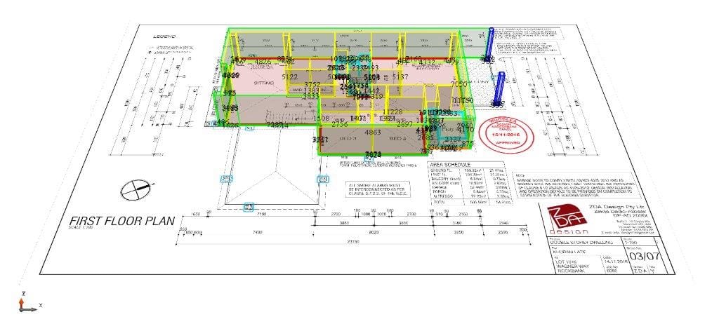
2 Storey House Bill of Quantities
Contents
- Related posts:
- Calculating Labour Required to Paint a Ceiling
- Central Coast Leagues Club Estimating
- Service Station Painting Estimating
- Crafting Success: The Art of Carpentry Estimating in Construction
- Hiring A Contract Estimator: How You Can Grow Your Building Trade Business
- Concrete Estimating: Why You Should Hire a Concreting Estimator for Your Contract Building Projects
- Salisbury 7 Eleven Estimating
- The Buffer Advantage: Why Building in Flexibility Wins Clients




